
チェックポイント
現況有姿引渡し
駐車場1台
建物:昭和41年新築(築59年)
土砂災害警戒区域内
価格 390万円
所在地 広島県 呉市 焼山桜ヶ丘 2丁目 5-24
物件位置
※google マップの表示は、現況と異なる場合があります。
google マップ/航空写真・ストリートビュー
敷地概略図

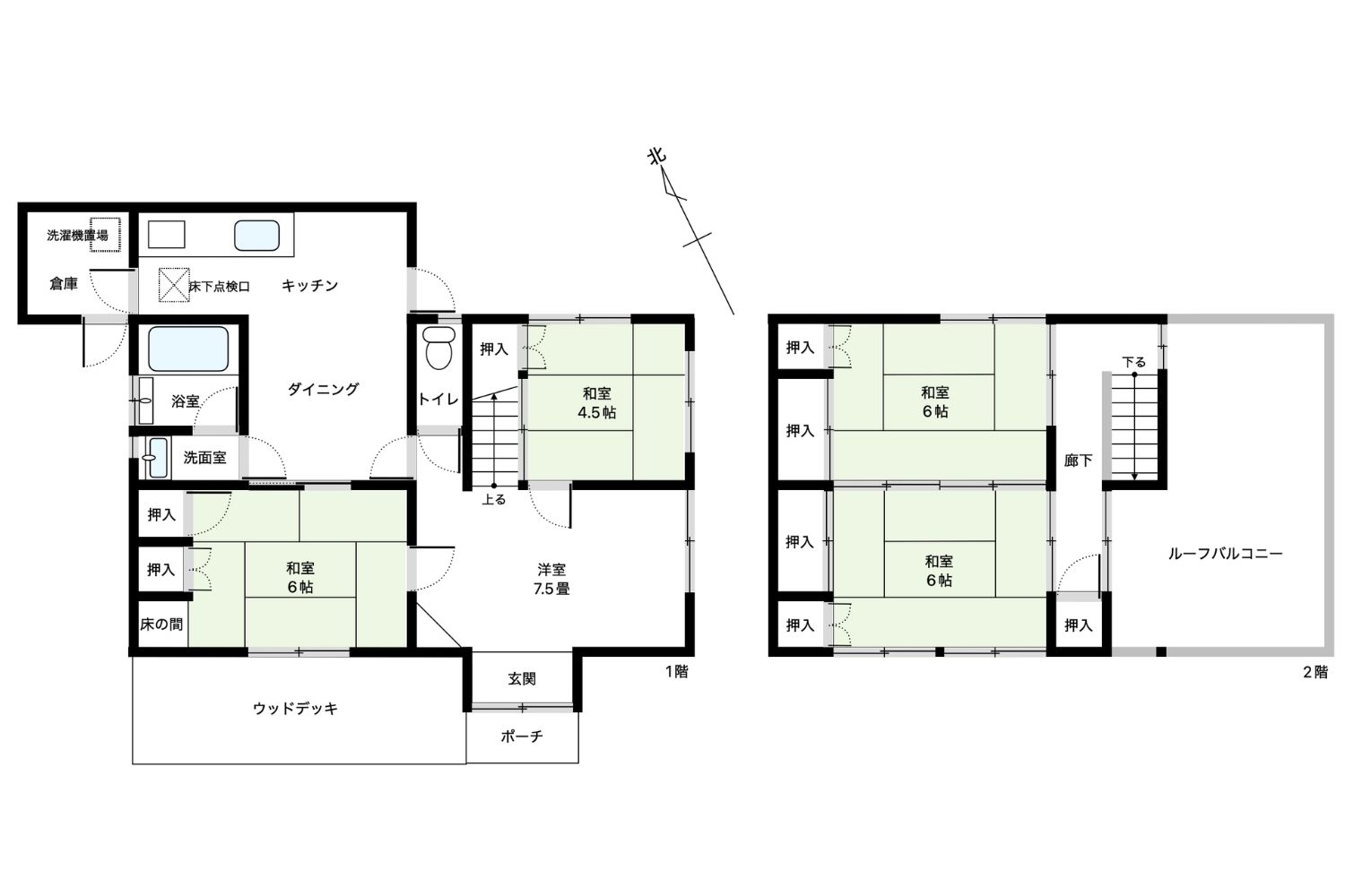
間取図

物件写真(合計47枚)
➕ 外観・外部・外回り(写真12枚)












➕ 内観・内部・居室(写真35枚)



































物件情報
基本情報
| 価格 | 390万円 | ||
| 所在地 | 広島県 呉市 焼山桜ヶ丘 2丁目5-24 | ||
| 土地面積 | 225.52㎡(登記)(68.2坪) | ||
| 建物面積 | 101.06㎡(登記)(30.5坪) | ||
| 建築年月 | 昭和41年8月 | ||
| 間取り | 5K | ||
| 用途地域 | 第一種低層住居専用地域 | ||
| 容積率 | 100% | 建ぺい率 | 50% |
| 現況 | 空家 | 引渡可能日 | 相談 |
| 交通 | 呉方面・広電バス 焼山熊野苗代線 バス停「桜ヶ丘団地」 400m(徒歩5分) 広島方面・広電バス 広島〜熊野・焼山方面(東雲経由) バス停「昭和市民センター西」 1700m(徒歩22分) 生活バス 昭和循環線・南コース バス停「桜ヶ丘団地南」 110m(徒歩2分) | ||
詳細情報
| 私道負担 | なし | セットバック | なし |
| 地目 | 宅地 | 地勢 | ー |
| 都市計画 | 市街化区域 | 国土法届出 | 不要 |
| 接道状況 | 南側 幅員約4.0mの道路に接道 東側 幅員約3.8mの道路に接道 | ||
| その他制限 | 景観法計画区域 宅地造成規制区域 | ||
| 建物構造・工法 | 木コンクリートブロック造陸屋根瓦葺 | 建物形式 | 地上2階 |
| 駐車スペース | 1台分 | 土地権利 | 所有権 |
| その他の条件 | 現状有姿引渡し | ||
| 特記事項 | ー | ||
| 備考 | ー | ||
| 取引態様 | 仲介 | ||
| 電気・水道・ガス | 電気、プロパンガス、公営水道、公共下水 | ||
| バス・トイレ | トイレ1ヶ所 | ||
| キッチン | システムキッチン | ||
| 収納 | ー | ||
| 設備・機能 | ー | ||
| 冷暖房 | ー | ||
| TV・通信 | ー | ||
| セキュリティ | ー | ||
| 庭・バルコニー | 屋外水洗 | ||
| その他 | ー | ||
その他の情報
| 郵便番号 | 737-0933 | 自治会 | 呉市昭和地区桜ヶ丘自治会 |
| 学区 | 小学校:昭和南小学校(900m)徒歩12分 中学校:昭和中学校(1700m)徒歩22分 | ||
| モバイルエリア | ドコモ 4GLTE au 4GLTE SoftBank (5G)4GLTE同等 楽天モバイル 4GLTE | ||
| 光回線提供エリア内 | 西日本フレッツ光 ネクスト1Gbps auひかり ホーム(S)1ギガ) NURO光2ギガ メガエッグ 光ベーシック | ||
| ハザードマップ | 土砂災害警戒区域内 | ||

住宅ローン シミュレーション(簡易版)
お問い合わせ
この物件のお問い合わせ、現地案内・内見のご希望はこちら
やけやま不動産
株式会社カイジャパン
広島県知事(1)第11378号
〒737-0903 広島県呉市焼山西3丁目22番23号
電話/FAX 0823-34-3824
営業時間 10:00〜18:00
※物件調査、写真撮影等のため不在の場合があります
不定休のため、営業日カレンダーをご参照ください
LINEの友だち登録をしていただくと、やり取りがスムーズです
営業日カレンダー
| 日 | 月 | 火 | 水 | 木 | 金 | 土 | ||||||||||||||
|---|---|---|---|---|---|---|---|---|---|---|---|---|---|---|---|---|---|---|---|---|
| ||||||||||||||||||||
| ||||||||||||||||||||
| ||||||||||||||||||||
| ||||||||||||||||||||
| ||||||||||||||||||||
| ||||||||||||||||||||
終日休
午後休
現地にて、物件、周辺環境等について、より詳しくご説明いたします。
ご参考にどうぞ


広島県 呉市 焼山 昭和地区について | やけやま不動産
概要 昭和地区の世帯数 14,511世帯昭和地区の人口 31,619人(R5年2月末)昭和地区の面積 27.76km2昭和地区は,呉市の北西部(中央付近は東経132度34分…
